株式会社ハウスパレット

  • お気に入り
  • プライバシーポリシー
  • サイトマップ
株式会社ハウスパレット

営業時間 / 10:00~19:00 (定休日/不定休)

エスリード新栄デュオ 4階

  • 礼金0
  • 敷金0
  • ペット相談
  • 駅近

お問い合わせ番号: 14109479

部屋紹介

新栄町駅徒歩5分、2021年7月築RC構造。敷金・礼金不要、即入居可の1K。南向きで明るく、ペットも相談できる住まい。独立洗面台や浴室乾燥機も。

間取り 間取り詳細 面積 賃料 管理費/共益費 敷金(保証金) 礼金 採光向き
1K 洋室 7.8畳 25.11㎡

59,700

8,000円 無料 無料

物件写真

物件情報は代表的なお部屋を掲載しております。
建物内の別の間取りでも空室がある場合がございます。
ご指名物件の空室待ちなども受付けておりますので、お電話かメールにてスタッフまでお申付下さい。
※写真や図と現況が異なる場合は現況を優先させていただきます。

部屋紹介

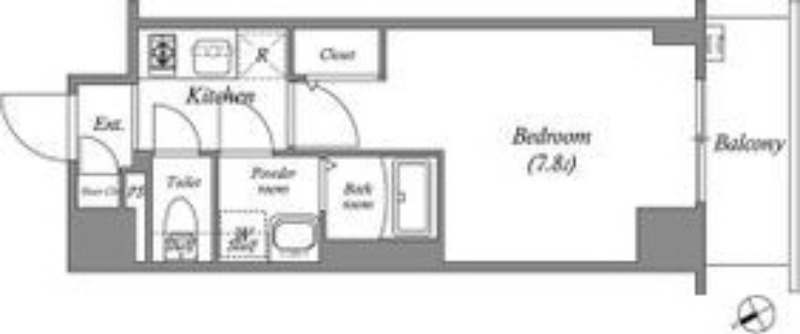
間取り 1K
間取り詳細 洋室 7.8畳

物件概要・設備
情報登録日:2026年04月08日 情報更新日:2026年04月15日 次回更新予定日:2026年04月29日

物件種別 マンション
物件名 エスリード新栄デュオ
物件所在地 愛知県名古屋市中区新栄2丁目
交通機関
  • 名古屋市営地下鉄東山線「新栄町駅」より徒歩5分
  • 名古屋市営地下鉄桜通線「高岳駅」より徒歩11分
  • 名古屋市営地下鉄東山線「千種駅」より徒歩11分
  • JR中央線「千種駅」より徒歩12分
周辺施設
  • ショッピングセンター: イオンタウン千種 距離1176m
  • スーパー: バロー車道店 距離849m
  • コンビニ: セブンイレブン名古屋新栄2丁目南店 距離130m
  • コンビニ: ローソンストア100中区新栄町店 距離387m
  • ドラッグストア: V・drug新栄店 距離301m
  • ドラッグストア: スギ薬局東新町店 距離932m
特記事項 ペット相談、保証会社利用可
賃料 59,700円 管理費/共益費 8,000円
敷金 無料 礼金 無料
フリーレント - 保険 年 900円
間取り 1K 面積 25.11㎡
採光向き 契約形態 普通契約 1年
所在階 4階 入居可能日 即日
総戸数 50戸 竣工月 2021年7月
建築構造 RC 建物階建 地上10階 
駐車場 駐車料 -
火災保険 鍵交換代 24,200円
保証会社 任意加入 /  その他
株式会社テナントファースト ※大手法人相談
諸経費 スマサポコンシェル入会金 契約時 入居時 5,500円
スマサポコンシェル 月額 1,320円
設備 ガス(都市ガス)、インターホン(TVモニター付き)、防犯カメラ、人感センサー、オートロック、宅配ボックス、駐輪場、フローリング、照明器具、ベランダ・バルコニー、クローゼット、クローゼット数(1)、下駄箱、バス・トイレ別(別室)、シャワー、浴室乾燥機、給湯、洗面台、洗面所独立、洗濯機置き場(室内)、コンロ種類(都市ガス)、冷房のみ、エアコン、エアコン台数(1)、BS、CS、CATV
備考 -

近隣マップ

エスリード新栄デュオへのお問い合わせ

株式会社ハウスパレット

052-951-6067

お問い合せ番号: 14109479

所在地 〒460-0003 愛知県名古屋市中区錦3-2-32 錦アクシスビル4F
営業時間 10:00~19:00 定休日 不定休

お問い合せフォーム

必須お名前
任意フリガナ
必須メールアドレス
任意電話番号
連絡ご希望の時間帯
任意FAX番号
任意郵送 住所
必須お問い合せ内容

個人情報のお取り扱いについて

お問い合わせフォームからお客様が入力された個人情報は、資料送付・電子メール送信・電話連絡などの目的でのみ使用いたします。 また、本サービスを円滑に運用するために、お客様の個人情報をサービスご利用の控えとして一定期間保管いたします。 メールアドレス・電話/FAX番号など、ご記入の内容が不明確でご連絡差し上げる事ができない場合、当社が本サービスを円滑に運用するために必要な範囲において直接確認のご連絡をさせていただく場合がありますのであらかじめご了承ください。 個人情報の取扱い方針については、こちらをご覧ください。

新着お知らせ