株式会社ハウスパレット

  • お気に入り
  • プライバシーポリシー
  • サイトマップ
株式会社ハウスパレット

営業時間 / 10:00~19:00 (定休日/不定休)

ディアレイシャス東別院Ⅳ. 2階

  • 礼金0
  • 敷金0

お問い合わせ番号: 14264001

部屋紹介

東別院駅徒歩7分、名古屋市中区の都心に誕生する新築1LDK。礼金・敷金・保証金不要、インターネットも無料で、初期費用を抑えて快適な新生活を始められます。オートロックや宅配ボックスも充実。

間取り 間取り詳細 面積 賃料 管理費/共益費 敷金(保証金) 礼金 採光向き
1LDK - 29.81㎡

77,000

8,000円 無料 無料

物件写真

物件情報は代表的なお部屋を掲載しております。
建物内の別の間取りでも空室がある場合がございます。
ご指名物件の空室待ちなども受付けておりますので、お電話かメールにてスタッフまでお申付下さい。
※写真や図と現況が異なる場合は現況を優先させていただきます。

部屋紹介

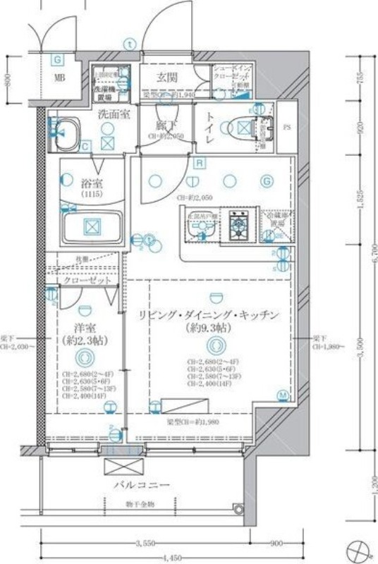
間取り 1LDK
間取り詳細 -

物件概要・設備
情報登録日:2026年04月24日 情報更新日:2026年04月24日 次回更新予定日:2026年05月08日

物件種別 マンション
物件名 ディアレイシャス東別院Ⅳ.
物件所在地 愛知県名古屋市中区千代田4丁目
交通機関
  • 名古屋市営地下鉄名城線「東別院駅」より徒歩7分
  • 名古屋市営地下鉄名城線「上前津駅」より徒歩10分
  • 名古屋市営地下鉄名城線「金山駅」より徒歩15分
  • 名古屋市営地下鉄鶴舞線「鶴舞駅」より徒歩10分
周辺施設
  • ショッピングセンター: フィールシャンピアポート 距離1165m
  • スーパー: マックスバリュ千代田店 距離480m
  • コンビニ: セブンイレブン名古屋千代田4丁目店 距離40m
  • コンビニ: ファミリーマート東別院駅前店 距離465m
  • ドラッグストア: スギ薬局上前津店 距離873m
特記事項 二人入居可、保証人不要、保証会社利用可
賃料 77,000円 管理費/共益費 8,000円
敷金 無料 礼金 無料
フリーレント - 保険 -
間取り 1LDK 面積 29.81㎡
採光向き 契約形態 普通契約 2年
所在階 2階 入居可能日 即日
総戸数 91戸 竣工月 2025年12月
建築構造 RC 建物階建 地上14階 
駐車場 駐車料 18,000円
火災保険 - 鍵交換代 -
保証会社 要加入 /  その他
エポスカード エポスROOMiD(初回50%、月次1%) GTN(初回100%、月次2%) ルームバンク(初回50%、月次1%) セーフティー(初回50%、年次10000円)
諸経費 エアコン内部洗浄代 退去時 退去時 11,000円
たのもしーど24 月額 2,200円
設備 ガス(都市ガス)、インターホン(TVモニター付き)、防犯カメラ、オートロック、宅配ボックス、専用ゴミ置き場(あり)、駐輪場、角部屋、照明器具、間接照明、ベランダ・バルコニー、下駄箱、バス・トイレ別(別室)、浴室乾燥機、給湯、ウォームレット、洗面台、洗面所独立、洗濯機置き場(室内)、コンロ設置済、コンロ口数(2)、コンロ種類(都市ガス)、カウンターキッチン、冷房のみ、エアコン、エアコン台数(1)、24H換気システム、BS、インターネット使用料無料
備考 -

近隣マップ

ディアレイシャス東別院Ⅳ.へのお問い合わせ

株式会社ハウスパレット

052-951-6067

お問い合せ番号: 14264001

所在地 〒460-0003 愛知県名古屋市中区錦3-2-32 錦アクシスビル4F
営業時間 10:00~19:00 定休日 不定休

お問い合せフォーム

必須お名前
任意フリガナ
必須メールアドレス
任意電話番号
連絡ご希望の時間帯
任意FAX番号
任意郵送 住所
必須お問い合せ内容

個人情報のお取り扱いについて

お問い合わせフォームからお客様が入力された個人情報は、資料送付・電子メール送信・電話連絡などの目的でのみ使用いたします。 また、本サービスを円滑に運用するために、お客様の個人情報をサービスご利用の控えとして一定期間保管いたします。 メールアドレス・電話/FAX番号など、ご記入の内容が不明確でご連絡差し上げる事ができない場合、当社が本サービスを円滑に運用するために必要な範囲において直接確認のご連絡をさせていただく場合がありますのであらかじめご了承ください。 個人情報の取扱い方針については、こちらをご覧ください。

新着お知らせ