株式会社ハウスパレット

  • お気に入り
  • プライバシーポリシー
  • サイトマップ
株式会社ハウスパレット

営業時間 / 10:00~19:00 (定休日/不定休)

北区元志賀賃貸戸建住宅B-1 1階

  • ペット相談
  • 駅近

お問い合わせ番号: 13866538

部屋紹介

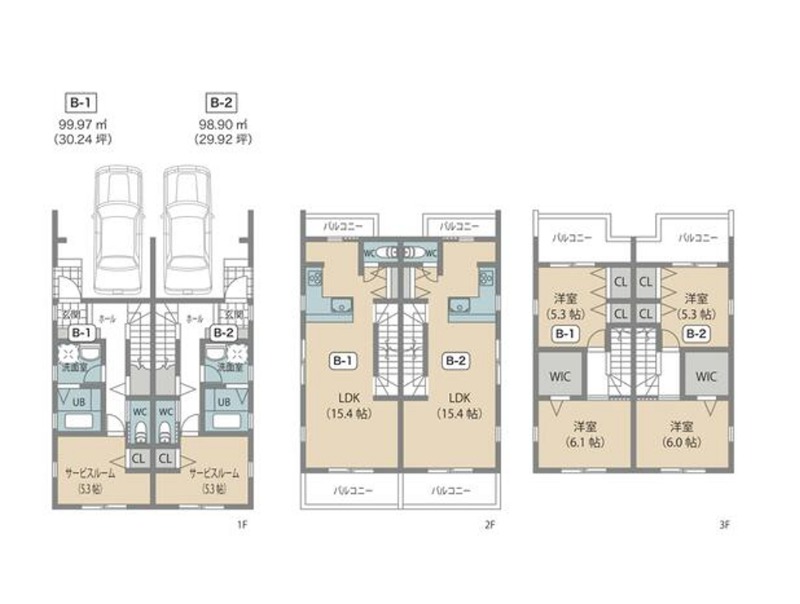
広々99.97㎡の3LDK。床暖房、システムキッチン、追い焚き機能付きバスなど、日々の快適をサポートする設備が揃っています。インターネット無料、駐車場も確保されており、新生活に最適です。

間取り 間取り詳細 面積 賃料 管理費/共益費 敷金(保証金) 礼金 採光向き
3LDK LDK 15.4畳
洋室 6.1畳
洋室 5.3畳
洋室 5.3畳
99.97㎡

175,000

5,000円 2ヶ月 1ヶ月

物件写真

物件情報は代表的なお部屋を掲載しております。
建物内の別の間取りでも空室がある場合がございます。
ご指名物件の空室待ちなども受付けておりますので、お電話かメールにてスタッフまでお申付下さい。
※写真や図と現況が異なる場合は現況を優先させていただきます。

部屋紹介

間取り 3LDK
間取り詳細 LDK 15.4畳 、 洋室 6.1畳 、 洋室 5.3畳 、 洋室 5.3畳

物件概要・設備
情報登録日:2026年02月16日 情報更新日:2026年02月16日 次回更新予定日:2026年03月02日

物件種別 テラスハウス
物件名 北区元志賀賃貸戸建住宅B-1
物件所在地 愛知県名古屋市北区元志賀町2丁目
交通機関
  • 名古屋市営地下鉄名城線「黒川駅」より徒歩3分
  • 名古屋市営地下鉄名城線「名城公園駅」より徒歩16分
  • 名古屋市営地下鉄名城線「志賀本通駅」より徒歩17分
  • 名鉄瀬戸線「清水駅」より徒歩21分
周辺施設
  • スーパー: ピアゴラフーズコア黒川店 距離427m
  • スーパー: トップワン志賀店 距離593m
  • スーパー: バロー光音寺店 距離836m
  • コンビニ: セブンイレブン名古屋黒川駅前店 距離301m
  • コンビニ: セブンイレブン名古屋地下鉄黒川駅店 距離314m
  • コンビニ: ファミリーマート金城町二丁目店 距離336m
  • ドラッグストア: V・drug黒川店 距離438m
  • ドラッグストア: ドラッグスギヤマ金城店 距離1026m
特記事項 事務所可、ペット相談、保証会社利用可
賃料 175,000円 管理費/共益費 5,000円
敷金 2ヶ月 礼金 1ヶ月
フリーレント - 保険 年 円
間取り 3LDK 面積 99.97㎡
採光向き 契約形態 普通契約
所在階 1階 入居可能日 即日
総戸数 - 竣工月 2022年3月
建築構造 木造 建物階建 地上1階 
駐車場 駐車料 無料
火災保険 鍵交換代 -
保証会社 要加入 /  その他
保証会社加入必須
諸経費 -
設備 メゾネット、バス・トイレ別(別室)、追い焚き、浴室乾燥機、ウォシュレット、トイレ2か所、洗面所独立、洗濯機置き場(室内)、システムキッチン、カウンターキッチン、エアコン、エアコン台数(1)、床暖房、インターネット使用料無料
備考 -

近隣マップ

北区元志賀賃貸戸建住宅B-1へのお問い合わせ

株式会社ハウスパレット

052-951-6067

お問い合せ番号: 13866538

所在地 〒460-0003 愛知県名古屋市中区錦3-2-32 錦アクシスビル4F
営業時間 10:00~19:00 定休日 不定休

お問い合せフォーム

必須お名前
任意フリガナ
必須メールアドレス
任意電話番号
連絡ご希望の時間帯
任意FAX番号
任意郵送 住所
必須お問い合せ内容

個人情報のお取り扱いについて

お問い合わせフォームからお客様が入力された個人情報は、資料送付・電子メール送信・電話連絡などの目的でのみ使用いたします。 また、本サービスを円滑に運用するために、お客様の個人情報をサービスご利用の控えとして一定期間保管いたします。 メールアドレス・電話/FAX番号など、ご記入の内容が不明確でご連絡差し上げる事ができない場合、当社が本サービスを円滑に運用するために必要な範囲において直接確認のご連絡をさせていただく場合がありますのであらかじめご了承ください。 個人情報の取扱い方針については、こちらをご覧ください。

新着お知らせ