建物内の別の間取りでも空室がある場合がございます。
ご指名物件の空室待ちなども受付けておりますので、お電話かメールにてスタッフまでお申付下さい。
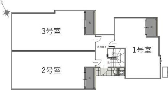
※写真や図と現況が異なる場合は現況を優先させていただきます。
| 所在階 | 間取り | 面積 | 賃料 | 管理費/共益費 | 敷金(保証金) | 礼金 | 採光向き | 詳細 |
|---|---|---|---|---|---|---|---|---|
| 2 階 | 2LDK | 40.1㎡ |
76,000 円 |
3,000円 | 無料 | 無料 | 東 | 詳細 |
| 物件種別 | アパート | ||
|---|---|---|---|
| 物件名 | REGALEST上飯田駅 | ||
| 物件所在地 | 名古屋市北区辻町5丁目 | ||
| 交通機関 |
|
||
| 周辺施設 |
|
||
| 特記事項 | 二人入居可、保証人要、保証会社利用可 | ||
| 賃料 | 76,000円 | 管理費/共益費 | 3,000円 |
| 間取り | 2LDK | 専有面積 | 40.1㎡ |
| 総戸数 | 9戸 | 竣工月 | 2024年6月 |
| 建築構造 | 木造 | 建物階建 | 地上3階 |
| 駐車場 | 空無 | 駐車料 | - |
| 設備 | ガス(プロパン)、インターホン(TVモニター付き)、防犯カメラ、オートロック、宅配ボックス、専用ゴミ置き場(あり)、角部屋、デザイナーズ、フローリング、二重ガラス、ベランダ・バルコニー、クローゼット、クローゼット数(1)、ウォークインクローゼット、ウォークインクローゼット数(1)、下駄箱、バス・トイレ別(別室)、シャワー、追い焚き、浴室乾燥機、給湯、ウォシュレット、ウォームレット、洗面台、洗面所独立、シャンプードレッサー、洗濯機置き場(室内)、コンロ設置済、コンロ口数(2)、コンロ種類(プロパン)、システムキッチン、冷房のみ、エアコン、エアコン台数(1)、24H換気システム、光ファイバー | ||
| 所在地 | 〒460-0003 愛知県名古屋市中区錦3-2-32 錦アクシスビル4F | ||
|---|---|---|---|
| 営業時間 | 10:00~19:00 | 定休日 | 不定休 |

名古屋市営地下鉄桜通線『中村区役所
駅』より徒歩4分
愛知県名古屋市中村区則武2丁目33-9

名古屋市営地下鉄東山線『新栄町
駅』より徒歩9分
愛知県名古屋市中区新栄2丁目29-13

名古屋市営地下鉄東山線『新栄町
駅』より徒歩7分
愛知県名古屋市中区新栄2丁目13-22

名古屋市営地下鉄東山線『新栄町
駅』より徒歩4分
愛知県名古屋市東区葵2丁目12-27

名古屋市営地下鉄鶴舞線『浅間町
駅』より徒歩6分
愛知県名古屋市西区幅下2丁目20-24

名古屋市営地下鉄桜通線『高岳
駅』より徒歩3分
愛知県名古屋市東区泉1丁目20-28

名古屋市営地下鉄鶴舞線『浄心
駅』より徒歩5分
愛知県名古屋市西区上名古屋2丁目2-16

名古屋市営地下鉄鶴舞線『浅間町
駅』より徒歩3分
愛知県名古屋市西区新道1丁目3-21

名古屋市営地下鉄鶴舞線『浅間町
駅』より徒歩5分
愛知県名古屋市西区花の木1丁目16-15

名古屋市営地下鉄桜通線『丸の内
駅』より徒歩5分
愛知県名古屋市中区丸の内2丁目6-6

名古屋市営地下鉄鶴舞線『丸の内
駅』より徒歩4分
愛知県名古屋市中区丸の内1丁目2-7

名古屋市営地下鉄鶴舞線『浅間町
駅』より徒歩5分
愛知県名古屋市西区新道2丁目11-9