株式会社ハウスパレット

  • お気に入り
  • プライバシーポリシー
  • サイトマップ
株式会社ハウスパレット

営業時間 / 10:00~19:00 (定休日/不定休)

Sugarloaf Park花の木 5階

  • 礼金0
  • 敷金0
  • ペット相談
  • 駅近

お問い合わせ番号: 12884699

部屋紹介

★☆名古屋でのお部屋探しはハウスパレットにお任せください☆★お客様のご要望やご希望を細かくお伺いし、ご納得いただけるまで物件選定させていただきます!お気軽にお問い合わせください。

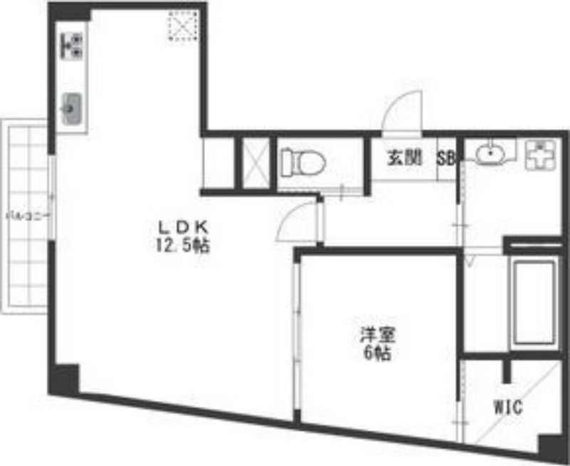
間取り 間取り詳細 面積 賃料 管理費/共益費 敷金(保証金) 礼金 採光向き
1LDK その他 6畳
その他 12.5畳
40.01㎡

90,000

10,000円 無料 無料 西

物件写真

物件情報は代表的なお部屋を掲載しております。
建物内の別の間取りでも空室がある場合がございます。
ご指名物件の空室待ちなども受付けておりますので、お電話かメールにてスタッフまでお申付下さい。
※写真や図と現況が異なる場合は現況を優先させていただきます。

部屋紹介

間取り 1LDK
間取り詳細 その他 6畳 、 その他 12.5畳

物件概要・設備
情報登録日:2025年10月09日 情報更新日:2025年10月09日 次回更新予定日:2025年10月23日

物件種別 マンション
物件名 Sugarloaf Park花の木
物件所在地 愛知県名古屋市西区花の木3丁目
交通機関
  • 名古屋市営地下鉄鶴舞線「浄心駅」より徒歩1分
  • 名古屋市営地下鉄鶴舞線「浅間町駅」より徒歩11分
  • 名古屋市営地下鉄名城線「名城公園駅」より徒歩22分
周辺施設
  • スーパー: フィール花の木店 距離547m
  • スーパー: アオキスーパー上名古屋店 距離1087m
  • スーパー: ヤマナカ庄内通店 距離1011m
  • コンビニ: ファミリーマート地下鉄浄心店 距離139m
  • コンビニ: セブンイレブン名古屋浄心店 距離241m
  • ドラッグストア: ウエルシア名古屋花の木店 距離359m
  • ドラッグストア: ドラッグスギヤマ城西店 距離600m
  • ドラッグストア: V・drug浄心店 距離836m
特記事項 二人入居可、ネコ可、ペット相談、ルームシェア対応、保証人不要、保証会社利用可
賃料 90,000円 管理費/共益費 10,000円
敷金 無料 礼金 無料
フリーレント - 保険 年 円
間取り 1LDK 面積 40.01㎡
採光向き 西 契約形態 普通契約 2年
所在階 5階 入居可能日 2025/11/上
総戸数 9戸 竣工月 2024年2月
建築構造 鉄骨 建物階建 地上5階 
駐車場 駐車料 13,200円
火災保険 鍵交換代 22,000円
保証会社 要加入 /  その他
オリコ 新管理 2025.3.15〜 ①(初回30%600円/月10000円/年)※最低保証料15000円②ジェイリース(初回50%600円/月10000円/年) ※最低保証料20000円*事業用はジェイリース指定(初回100%600円/月10%/年) ※
諸経費 消毒施工代 入居時 入居時 22,000円
エアコンクリーニング代 退去時 退去時 16,500円
設備 ガス(プロパン)、インターホン(TVモニター付き)、防犯カメラ、オートロック、宅配ボックス、専用ゴミ置き場(あり)、駐輪場、デザイナーズ、フローリング、ベランダ・バルコニー、下駄箱、バス・トイレ別(別室)、シャワー、追い焚き、浴室乾燥機、ウォシュレット、洗面台、洗面所独立、洗濯機置き場(室内)、コンロ設置済、コンロ口数(3)、コンロ種類(プロパン)、システムキッチン、冷房のみ、エアコン、エアコン台数(1)、24H換気システム、光ファイバー、インターネット使用料無料
備考 -

近隣マップ

Sugarloaf Park花の木へのお問い合わせ

株式会社ハウスパレット

052-951-6067

お問い合せ番号: 12884699

所在地 〒460-0003 愛知県名古屋市中区錦3-2-32 錦アクシスビル4F
営業時間 10:00~19:00 定休日 不定休

お問い合せフォーム

必須お名前
任意フリガナ
必須メールアドレス
任意電話番号
連絡ご希望の時間帯
任意FAX番号
任意郵送 住所
必須お問い合せ内容

個人情報のお取り扱いについて

お問い合わせフォームからお客様が入力された個人情報は、資料送付・電子メール送信・電話連絡などの目的でのみ使用いたします。 また、本サービスを円滑に運用するために、お客様の個人情報をサービスご利用の控えとして一定期間保管いたします。 メールアドレス・電話/FAX番号など、ご記入の内容が不明確でご連絡差し上げる事ができない場合、当社が本サービスを円滑に運用するために必要な範囲において直接確認のご連絡をさせていただく場合がありますのであらかじめご了承ください。 個人情報の取扱い方針については、こちらをご覧ください。

新着お知らせ