株式会社ハウスパレット

  • お気に入り
  • プライバシーポリシー
  • サイトマップ
株式会社ハウスパレット

営業時間 / 10:00~19:00 (定休日/不定休)

ロイジェント栄 4階

  • 礼金0

お問い合わせ番号: 13228526

部屋紹介

★☆名古屋でのお部屋探しはハウスパレットにお任せください☆★お客様のご要望やご希望を細かくお伺いし、ご納得いただけるまで物件選定させていただきます!お気軽にお問い合わせください。

間取り 間取り詳細 面積 賃料 管理費/共益費 敷金(保証金) 礼金 採光向き
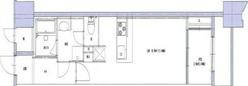
1LDK - 37.61㎡

87,000

8,600円 1ヶ月 無料

物件写真

物件情報は代表的なお部屋を掲載しております。
建物内の別の間取りでも空室がある場合がございます。
ご指名物件の空室待ちなども受付けておりますので、お電話かメールにてスタッフまでお申付下さい。
※写真や図と現況が異なる場合は現況を優先させていただきます。

部屋紹介

間取り 1LDK
間取り詳細 -

物件概要・設備
情報登録日:2025年11月06日 情報更新日:2025年11月06日 次回更新予定日:2025年11月20日

物件種別 マンション
物件名 ロイジェント栄
物件所在地 愛知県名古屋市中区栄1丁目
交通機関
  • 名古屋市営地下鉄東山線「伏見駅」より徒歩9分
  • 名古屋市営地下鉄鶴舞線「大須観音駅」より徒歩10分
周辺施設
  • スーパー: MEGAドン・キホーテUNY納屋橋店 距離331m
  • スーパー: COSPOPO 距離660m
  • コンビニ: ファミリーマート名古屋栄一丁目店 距離23m
  • コンビニ: セブンイレブン名古屋栄1丁目店 距離194m
  • コンビニ: ローソンストア100栄三蔵通店 距離280m
  • ドラッグストア: マツモトキヨシテラッセ納屋橋店 距離331m
  • ドラッグストア: スギ薬局伏見御園店 距離501m
  • ドラッグストア: スギドラッグ伏見西店 距離622m
特記事項 二人入居可、保証人要、保証会社利用可
賃料 87,000円 管理費/共益費 8,600円
敷金 1ヶ月 礼金 無料
フリーレント - 保険 2年 17000円
間取り 1LDK 面積 37.61㎡
採光向き 契約形態 普通契約 2年
所在階 4階 入居可能日 即日
総戸数 45戸 竣工月 2009年9月
建築構造 RC 建物階建 地上13階 
駐車場 空無 駐車料 27,500円
火災保険 鍵交換代 -
保証会社 要加入 /  その他
アプラス家賃サービス「プラス」 初回保証料家賃総額の50% 月額保証料家賃総額(変動費含む)の1%
諸経費 -
設備 ガス(都市ガス)、インターホン(TVモニター付き)、防犯カメラ、オートロック、宅配ボックス、専用ゴミ置き場(あり)、駐輪場、日当り良好、角部屋、デザイナーズ、フローリング、ベランダ・バルコニー、下駄箱、バス・トイレ別(別室)、シャワー、浴室乾燥機、給湯、ウォシュレット、洗面台、コンロ種類(都市ガス)、システムキッチン、冷房のみ、エアコン、エアコン台数(1)、24H換気システム、BS、インターネット使用料無料
備考 -

近隣マップ

ロイジェント栄へのお問い合わせ

株式会社ハウスパレット

052-951-6067

お問い合せ番号: 13228526

所在地 〒460-0003 愛知県名古屋市中区錦3-2-32 錦アクシスビル4F
営業時間 10:00~19:00 定休日 不定休

お問い合せフォーム

必須お名前
任意フリガナ
必須メールアドレス
任意電話番号
連絡ご希望の時間帯
任意FAX番号
任意郵送 住所
必須お問い合せ内容

個人情報のお取り扱いについて

お問い合わせフォームからお客様が入力された個人情報は、資料送付・電子メール送信・電話連絡などの目的でのみ使用いたします。 また、本サービスを円滑に運用するために、お客様の個人情報をサービスご利用の控えとして一定期間保管いたします。 メールアドレス・電話/FAX番号など、ご記入の内容が不明確でご連絡差し上げる事ができない場合、当社が本サービスを円滑に運用するために必要な範囲において直接確認のご連絡をさせていただく場合がありますのであらかじめご了承ください。 個人情報の取扱い方針については、こちらをご覧ください。

新着お知らせ