株式会社ハウスパレット

  • お気に入り
  • プライバシーポリシー
  • サイトマップ
株式会社ハウスパレット

営業時間 / 10:00~19:00 (定休日/不定休)

エステムコート名古屋駅前CORE 8階

  • 礼金0
  • 敷金0
  • ペット相談
  • 駅近

お問い合わせ番号: 13604561

部屋紹介

☆名古屋でのお部屋探しはハウスパレットにお任せください☆ご納得いただけるまで物件選定させていただきます!【TEL:052-951-6067までお問合せください♪】

間取り 間取り詳細 面積 賃料 管理費/共益費 敷金(保証金) 礼金 採光向き
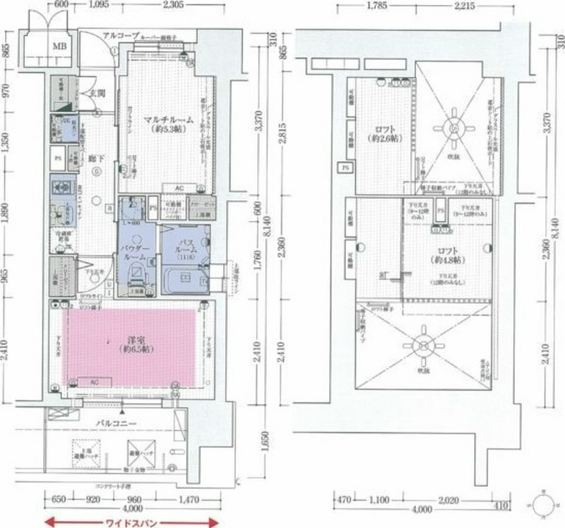
2K その他 6.5畳 32.12㎡

82,000

12,200円 無料 無料 西

物件写真

物件情報は代表的なお部屋を掲載しております。
建物内の別の間取りでも空室がある場合がございます。
ご指名物件の空室待ちなども受付けておりますので、お電話かメールにてスタッフまでお申付下さい。
※写真や図と現況が異なる場合は現況を優先させていただきます。

部屋紹介

間取り 2K
間取り詳細 その他 6.5畳

物件概要・設備
情報登録日:2026年01月16日 情報更新日:2026年01月16日 次回更新予定日:2026年01月30日

物件種別 マンション
物件名 エステムコート名古屋駅前CORE
物件所在地 愛知県名古屋市西区那古野2丁目
交通機関
  • JR東海道本線「名古屋駅」より徒歩7分
  • 名古屋市営地下鉄桜通線「国際センター駅」より徒歩5分
周辺施設
  • スーパー: 成城石井大名古屋ビルヂング店 距離750m
  • コンビニ: ファミリーマート那古野南店 距離235m
  • コンビニ: セブンイレブン名古屋名駅3丁目店 距離345m
  • ドラッグストア: スギ薬局名駅桜通店 距離371m
  • 郵便局: 名古屋那古野郵便局 距離96m
  • 銀行: 名古屋銀行名古屋駅前支店 距離383m
特記事項 分譲タイプ、ペット相談、保証人不要、保証会社利用可
賃料 82,000円 管理費/共益費 12,200円
敷金 無料 礼金 無料
フリーレント - 保険 2年 18000円
間取り 2K 面積 32.12㎡
採光向き 西 契約形態 普通契約 1年
所在階 8階 入居可能日 相談
総戸数 86戸 竣工月 2012年11月
建築構造 RC 建物階建 地上12階 
駐車場 - 駐車料 -
火災保険 鍵交換代 33,000円
保証会社 要加入 /  その他
(賃貸保証会社:エステム保証サービス、初回保証料総賃料の50% 月の更新料総賃料の1.5%)
諸経費 契約事務手数料 入居時 11,000円
エステム安心クラブ 入居時 5,500円
エステム安心クラブ 月額 990円
設備 ガス(都市ガス)、インターホン(TVモニター付き)、防犯カメラ、オートロック、宅配ボックス、専用ゴミ置き場(あり)、駐輪場、バイク置き場、角部屋、フローリング、ロフト、照明器具、ベランダ・バルコニー、下駄箱、バス・トイレ別(別室)、浴室乾燥機、給湯、ウォシュレット、洗面台、洗面所独立、シャンプードレッサー、洗濯機置き場(室内)、コンロ設置済、コンロ口数(2)、コンロ種類(都市ガス)、冷房のみ、エアコン、エアコン台数(1)、床暖房、24H換気システム、BS、CS、CATV
備考 ☆名古屋でのお部屋探しはハウスパレットにお任せください☆ご納得いただけるまで物件選定させていただきます!【TEL:052-951-6067までお問合せください♪】

近隣マップ

エステムコート名古屋駅前COREへのお問い合わせ

株式会社ハウスパレット

052-951-6067

お問い合せ番号: 13604561

所在地 〒460-0003 愛知県名古屋市中区錦3-2-32 錦アクシスビル4F
営業時間 10:00~19:00 定休日 不定休

お問い合せフォーム

必須お名前
任意フリガナ
必須メールアドレス
任意電話番号
連絡ご希望の時間帯
任意FAX番号
任意郵送 住所
必須お問い合せ内容

個人情報のお取り扱いについて

お問い合わせフォームからお客様が入力された個人情報は、資料送付・電子メール送信・電話連絡などの目的でのみ使用いたします。 また、本サービスを円滑に運用するために、お客様の個人情報をサービスご利用の控えとして一定期間保管いたします。 メールアドレス・電話/FAX番号など、ご記入の内容が不明確でご連絡差し上げる事ができない場合、当社が本サービスを円滑に運用するために必要な範囲において直接確認のご連絡をさせていただく場合がありますのであらかじめご了承ください。 個人情報の取扱い方針については、こちらをご覧ください。

新着お知らせ